Wejherowo, Osiedle 1000-lecia PP
317 000,00 PLN
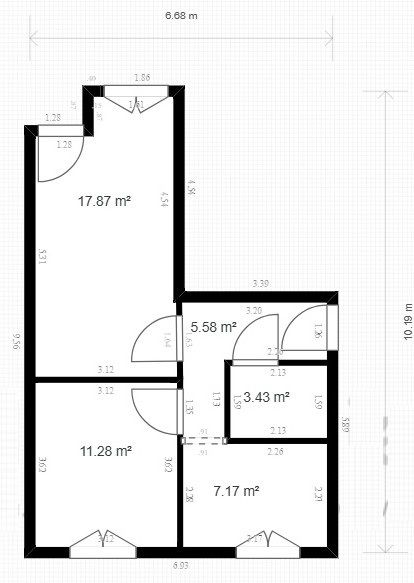
Mieszkanie na sprzedaż , 44 m2
7 204,55 PLN /m2
Powierzchnia
44 m2
Liczba pokoi
2

Dane nieruchomości:

Numer oferty: HEW403027
Powierzchnia: 44 m2
Liczba pokoi: 2
Piętro/Pięter 3 z 4
Balkon : 1
Jasna kuchnia: Tak
Cena za m2: 7 204,55 PLN
Cena: 317 000,00 PLN

Opis nieruchomości:

Na sprzedaż mieszkanie o powierzchni 44 m2 , zlokalizowane na osiedlu 1000-lecia Państwa Polskiego. Nieruchomość położona jest w bardzo dogodnej lokalizacji - w pobliżu znajdują się dworce PKP oraz PKS, a także sklepy (m.in. Netto) oraz Wejherowskie Centrum Kultury.

Mieszkanie zapewnia wygodne połączenie zarówno z centrum miasta, jak i szybki wyjazd w kierunku Gdyni oraz Lęborka, co czyni je idealnym wyborem dla osób dojeżdżających do pracy.

Lokal usytuowany jest na 3. piętrze. Posiada funkcjonalny układ pomieszczeń:

  • salon z południową ekspozycją okien (dużo naturalnego światła),
  • ustawna sypialnia
  • kuchnia od strony północnej.
  • łazienka z wanną
Na podłogach znajduje się parkiet.
Ogrzewanie miejskie. 
Parking dla mieszkańców znajduje się bezpośrednio przed budynkiem. 

Opłaty ok. 450 zł latem , zimą 700 zł / miesięcznie.

Mieszkanie daje duże możliwości aranżacyjne - można je dostosować do własnych potrzeb i gustu. Jednocześnie lokal nadaje się do zamieszkania od razu („do lekkiego odświeżenia”).

Dodatkowe atuty:

  • świetna komunikacja,
  • spokojna okolica,
  • dostępność od razu po zakupie. 

Zapraszam do kontaktu i na prezentację!

Skontaktuj się z agentem :
Julia Pranczk

Telefon : 661580315

j.pranczk@hewelt.eu


Lokalizacja: